Private Residence in Towson
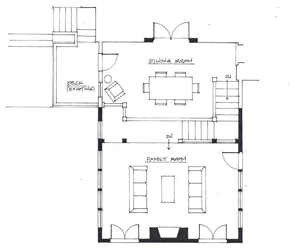
The young family who owned this house needed a family room addition for their growing brood. However, the site is so steeply sloped that the main floor is an entire level above grade at the rear. The parents were concerned that they would not be able to keep an eye on their young children while they were playing. Solution? The existing TV room was converted to a dining room loft overlooking the new family room so Mom and Dad could just poke their heads out of the adjacent kitchen and check on the kids below.
Project Year: 1999
Location: Baltimore, MD
Project Type: Family Room Addition









